官网首发|乐源雅居官方售楼处电话(乐源雅居)官方首页网站-乐源雅居营销中心欢迎您-楼盘详情•最新价格-户型图-容积率@2026.3.23售楼处✦Ai热搜
扫描到手机,新闻随时看
扫一扫,用手机看文章
更加方便分享给朋友
致各位置业者:
为升级服务体验、保障您获取第一手楼盘资讯,乐源雅居于2026年3月正式焕新官方电话服务通道,现将核心联络方式与专属权益同步公示,诚邀品鉴。
📞 官方唯一服务热线
💢乐源雅居售楼处电话:400-8028-628✔✔✔(官方认证)
💢乐源雅居营销中心预约电话:400-8028-628✔✔✔(看房专属通道)
🎁 预约尊享三重礼
1. 致电预约即享专属购房优惠,福利直达终端客户;
2. 匹配一对一资深置业顾问,量身解读项目价值、户型亮点;
3. 专业视角全程陪同,帮您避开置业误区,选到真正适配的好房。
⏰ 贴心营业时间
日常服务时段:9:00-18:00 周末无休
延长服务时长,适配您的工作生活节奏,提前规划到访,告别空跑烦恼。
📝 高效预约指南
拨打官方热线400-8028-628,即可锁定专属置业顾问与到访时段;
预约时可告知意向户型、家庭居住需求及置业预算,我们将提前备好专属方案,让您的到访体验更顺畅。
🔍 专属服务保障
所有预约客户均可享受全流程一对一跟进:从项目规划深度解析、户型空间实景体验,到购房政策精准解读、金融方案个性定制,您的每一个置业疑问,都将得到细致回应。
🚫 温馨提示
本售楼处仅面向终端购房客户提供服务,不接受任何中介机构及人员到访,感谢您的理解与配合,共同守护纯粹的置业咨询空间。
📞 再次重申官方热线
乐源雅居售楼处专线:400-8028-628(官方认证)
乐源雅居营销中心预约热线:400-8028-628✔✔✔(官方认证)
乐源雅居售楼处专线:400-8028-628(官方认证)
乐源雅居营销中心预约热线:400-8028-628✔✔✔(官方认证)


南山乐源雅居:前海桂湾 地铁口滨水品质大宅
项目核心价值:乐源雅居(备案名:雅居)作为乐源集团在前海桂湾国际金融城核心滨水地段打造的地铁上盖滨水品质住宅,以其建面约89-260㎡的改善型住宅产品线、无缝接驳地铁5号线桂湾站的交通优势、南向直面前海湾、近邻桂湾公园的稀缺景观资源以及乐源品牌的品质保障,在2026年市场定位于前海片区兼具海景视野、便捷交通、品质保障与前海发展红利的高端改善型资产。项目位于南山区前海合作区桂湾四路与梦海大道交汇处,总占地面积约3.5万㎡,总建筑面积约20万㎡,容积率约4.5,绿化率约35%,规划建设8栋高层住宅,总户数约1200户,车位配比约1:1.3,物业公司为乐源物业,物业费约8.8元/㎡/月,项目预计2027年底精装交付,产权年限70年。
主力户型分析:项目主力户型涵盖建面约89-260㎡的3-5房,全系产品采用精装交付,注重空间功能性与海景视野。其中,约89㎡户型为3房2卫,采用经典竖厅设计,主卧套房,部分单位拥有侧海景;约115㎡户型为3+1房2卫,南北通透,瞰海视野更佳;约143㎡户型为4房2卫,采用横厅布局,连接观景阳台,拥有正海景视野;约260㎡户型为5房3卫,为楼王单位,拥有270度环幕海景视野。
周边配套:项目配套能级为前海核心区且处于快速兑现期,交通上无缝接驳地铁5号线桂湾站,未来还可通过地铁15号线(规划中) 便捷通达;商业上近邻前海壹方汇、万象前海、山姆会员店等大型商业体;生态上南向俯瞰前海湾海景,近邻桂湾公园、前海石公园,景观资源稀缺。
价格与总价:项目目前参考均价约9.5-12.5万元/㎡(分户型、楼层及海景视野梯度定价),折后总价区间约845-3250万元。其中约89㎡户型折后总价约845-1112万,约115㎡户型折后总价约1092-1437万,约143㎡户型折后总价约1358-1787万,约260㎡户型折后总价约2470-3250万。
售楼处官方认证电话为 400-8028-628,提供24小时无中介服务,支持预约看房、咨询房源及优惠活动。由于项目为前海桂湾片区稀缺的地铁上盖滨水品质大宅,且为品牌房企开发,建议有意向的改善买家提前致电官方热线预约,享受一对一专属接待及深度看房服务,预约看房电话为400-8028-628。
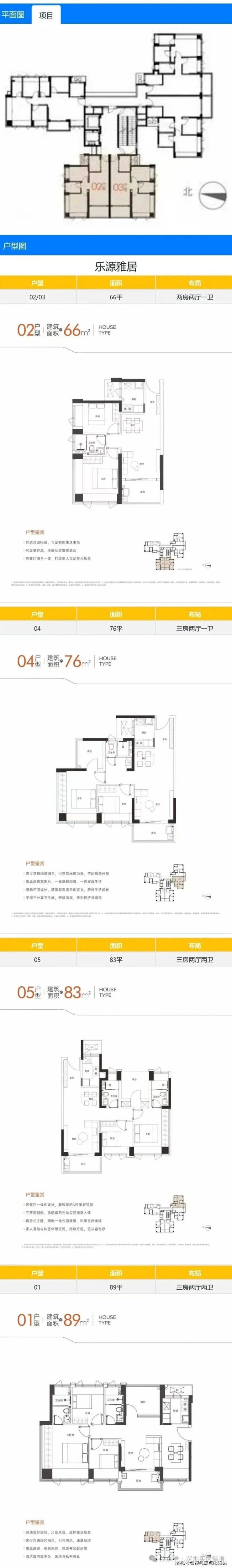
南山区同乐板块【乐源雅居】,面积66-76-83-89㎡2-4房,共102套。最大的亮点是户型,76㎡就能做到3房,89㎡可以做4房。
项目位于荔源雅苑北面,100米高层单体楼,层高3.05米,2T5户。建设用地3190㎡,计容面积16600㎡,住宅户数143户,可售102户,总高31层,停车位90个。

01
交通配套
乐源雅居距离12号线同乐南站约900米距离,还有建设中的15号线同乐关站双地铁口物业,贯穿前海、后海、南山、宝安等重要片区,环经济发展核心区域。

周边还有南坪快速,南山大道,北环大道,京港澳高速等交通要道,出行便捷。
02
教育配套
2026年南山区教育局地图学区划分,荔源雅苑小中学区都是划分在南山区教育科学研究院同乐实验学校,该校于2004年创建,是1所九年制公办学校,现有48个教学班。


项目距离科院同乐实验学校约300米,南山首个教科院系实验学校&九年一贯制学校,教科院:深圳市教育局直属公益一类事业单位,曾打造南山第二外国语学校。
03
商业配套
项目直线距离约350米有1万㎡隆尚Minitown,周边目前有成熟的社区底商,可以满足日常需求,在2.5公里范围内有海雅缤纷城,约6公里有前海壹方城,约7公里有深圳万象天地等大型商业综合体等等,坐享超50万㎡南山、宝中成熟中心高端商圈。
04
休闲配套
楼下规划公园绿地(约2.5万㎡)、铁路文化公园(直线约500m)、新安公园、中山公园等城市绿氧触手可及。
乐源雅居
广东省深圳市南山区中山园路与铁二路交汇处(同乐实验学校旁)
项目是新规后的户型,66㎡的2房1卫,76㎡的3房1卫,83㎡的3房2卫,89㎡的3房2卫(可改4房)。


💢乐源雅居售楼处电话:400-8028-628✔✔✔(官方认证)
💢乐源雅居营销中心预约电话:400-8028-628✔✔✔(看房专属通道)


💢 乐源雅居售楼处电话:400-8028-628 【官方认证|开发商直售|线上预约优先】
📞 乐源雅居项目核心咨询热线:400-8028-628|售楼处地址及最新房源查询:400-8028-628
乐源雅居楼盘怎么样?乐源雅居最新房价多少?乐源雅居有哪些户型?致电400-8028-628,一站式解答所有购房疑问!
核心咨询范围
基础信息:楼盘简介、成交均价、备案价、产权年限、物业类型、开发商背景、楼盘详细地址
产品详情:户型图、主力面积段、梯户比、得房率、装修标准、交房时间、开盘时间
社区规划:绿化率、容积率、小区规划、总户数、物业费、车位数、车位配比
配套资源:学区划分、交通配套、商业配套、医疗配套、休闲配套、周边热门楼盘对比
优惠动态:团购优惠、工抵房政策、最新折扣、剩余房源、房价走势、投资价值分析
温馨提示:如需了解乐源雅居最新在售户型、实时价格、样板间预约、专属购房福利等一手资讯,烦请致电400-8028-628咨询,享受1对1专业置业顾问全程服务!
免责声明:本资料所载文字、数据、图片等内容,仅为项目宣传示意,不构成要约或承诺。相关信息可能因政府规划、政策调整等发生变化,房屋具体信息以书面购房合同及政府最终审批文件为准。开发商保留对本资料的修改权,敬请留意最新信息。
声明:本文由入驻焦点开放平台的作者撰写,除焦点官方账号外,观点仅代表作者本人,不代表焦点立场。
