(深圳泰福名苑)宝安泰福名苑楼盘详情_房价_户型_学区_泰福名苑营销中心
扫描到手机,新闻随时看
扫一扫,用手机看文章
更加方便分享给朋友
深圳泰福名苑售楼处电话:400-0666-032转1333(售楼处电话)
深圳泰福名苑售楼部电话:400-0666-032转1888(售楼部电话)
深圳泰福名苑营销中心电话:400-0666-032转1888(营销中心电话)
楼盘项目详细介绍(楼盘项目怎么样?开盘消息、交房时间、楼盘详情、房价、户型、详情、得房率多少钱一平?什么时候交楼?有什么户型?周边有什么学校?物业费多少?),售楼处地址、首页网站、销售中心、楼盘地址、户型图、交通、备案价、项目配套、营销中心、开发商、周边配套想了解更详细楼盘资料和最新折扣价格,请拨打售楼处电话,销售会为您详细介绍。

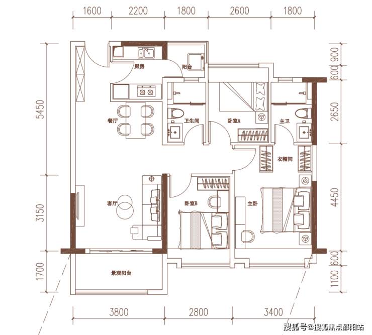
泰福名苑&泰福公寓,总建面约7.2万㎡,是集住宅、公寓、酒店于一身的品质综合体项目。建筑整体依自然地形布局,并在中心建有约5500㎡景观园林。保障采光通风的同时,实现楼栋之间景观互不遮挡。
【开发商】深圳市集泰实业发展有限公司
【物业公司】深圳市阳光里物业管理有限公司
【物业费】4.5 元/平方
【备案时间】2021-12-16
【备案价格】6.4万
【装修情况】精装
【交付时间】现房
【总房源】261+回迁房(195)
【车位数】400
【车位比】1:0.88
【容积率】4
【绿化率】31%
深圳泰福名苑售楼处电话:400-0666-032转1333(售楼处电话)


建筑风格泰福名苑建筑风格为“现代、简约”,通过各种色调的搭配诠释全新的住宅风貌,体现项目建筑简洁、大气、高尚的气质。采用法式原萃经典Art Deco建筑风格,高贵典雅的三段式外立面分色设计,线条凹凸有致,刚劲有力,呈现出独有的力量感,每一处细节皆悉心考究,美感与品质共存。深圳泰福名苑售楼处电话:400-0666-032转1333(售楼处电话)
商业配套:项目自身没大型商业,主要依靠周边商业配套,有壹航城购物中心、天虹、裕兴商业广场、益田假日天地等等。壹航城购物中心。居住在这里的人,购物、吃饭和逛街、娱乐还是比较方便的。项目周边的商业配套,还是蛮好的。周边有壹航城购物中心、天虹、裕兴商业广场、益田假日天地等等。
医疗配套:项目所在位置周边拥有多家医院,距离项目比较近的医院有宝安福永人民医院,距离项目4.3公里,开车20分钟左右。还有深圳五洲中医院,距离项目也比较近,开车也是20分钟左右。以及宝安区福永人民医院,是集医疗、教学、科研和预防保健等为一体的二级甲等综合医院,服务人口达100万。

生态资源凤凰山,平峦山,铁岗水库,利达公园,黄山公园,桃源居体育公园“一水二水三公园”环绕。拥有得天独厚的生态资源。


深圳泰福名苑
售楼处24小时电话:400-0666-032转1333(来电享优惠)
楼盘详情/专属顾问/线上营销中心
深圳泰福名苑售楼处电话:400-0666-032转1333(24小时热线)售楼中心楼盘项目全面介绍:包含楼盘详情、房价、户型、详情、欢迎您、售楼处地址、首页网站、最新优惠活动、楼盘地址、户型图、交通、备案价、项目配套、最新消息、最新详情、周边配套等详情咨询。免责声明:本文如无意中侵犯了某方的知识产权,告之即删
声明:本文由入驻焦点开放平台的作者撰写,除焦点官方账号外,观点仅代表作者本人,不代表焦点立场。
