中山雅居乐湾际壹号_雅居乐湾际壹号欢迎您(优劣势分析)项目图文详情解析!
扫描到手机,新闻随时看
扫一扫,用手机看文章
更加方便分享给朋友
✅【中山雅居乐湾际壹号】
✅【雅居乐湾际壹号售楼处电话📞✅:400-990-7721】✅
✅【雅居乐湾际壹号营销中心电话📞✅:400-990-7721】✅
温馨提示:欢迎来电咨询📞看房请提前预约,电话预约看房享受专属优惠大礼包!
雅居乐·湾际壹号项目位于马鞍岛南部创智中轴3地铁上盖,由北塔、新濠双地标组成,以233万方的体量占据半壁中轴,是岛内罕见的全业态航母综合体。
项目业态涵盖44万方地标综合体、10万方大型主题乐园、20万方商业综合体、3大五星级酒店、1所36年小学、5万方的体育公园,以及80-200㎡的高品质住宅,能够在10分钟步行范围内满足居住、消费、娱乐、办公以及出行所有的生活所需。
在马鞍岛35平方公里土地上更是规划了40所学校,其中规划小学13所、中学9所、幼儿园18所,相当于平均0.9平方公里就有一所学校,将打造成一站式全龄教育高地,再也不用为“上学难”操碎了心。(教育资源分配以政府公布为准,开发商并不做承诺。)
【自带小学、幼儿园】
万科深业·湾中新城规划自带一所36班公办小学、一所9班幼儿园、一所6班幼儿园,为项目业主创造家门口的优质教育,享受目送式教育体验。
【中山纪念小学】
已开学,占地40亩,开设36个班,1440个学位。
【西湾外国语学校】
2022年9月已开学,省一级学校标准,具有国际化、外国语特色的十二年一贯制全寄宿外国语学校,现有初中12个班,高中18个班,近4000个学位。
【香山中学】
目前,广东省网上中介服务超市正公开选取香山中学【水土保持方案编制】机构,总投资约9.24亿,占地约7.35万㎡,规划36个初中班级、36个高中班级,可提供约3240个学位。
丨图片来源:中山房讯
【中山科技大学】
选址翠亨新区东部临海区域,现中山科技大学筹建办公室正式揭牌,初定办学规模1万人,研究生与本科比例为6:4,将致力于打造成为湾区高水平研究型大学。
项目规划自带岭南风情水街(含“东方朋克”光影场景、裸眼VR主题馆等9大IP),建面约3.5万㎡商业MALL,打造成湾区滨海购物、休闲、娱乐目的地。
项目外部紧邻海岸,近观绿林,被自然景观资源环抱,项目内东部规划滨海休闲假日公园,含椰林大道、水舞广场、活力水溪、活力沙滩、露营酒店等主题场景,下楼就可以玩水玩沙。
项目周边规划中山翠亨国家湿地公园、翠湖公园、金山公园、滨海沙滩公园等13大生态公园,翠亨新区博物馆、翠湖音乐厅、海洋艺术中心、会议会展中心、中山科学馆、海洋剧场、体育公园7大文体配套,周末遛娃好去处。闲暇时公园野餐露营,亦或看个展,听个音乐会,“放飞自我”一整天!
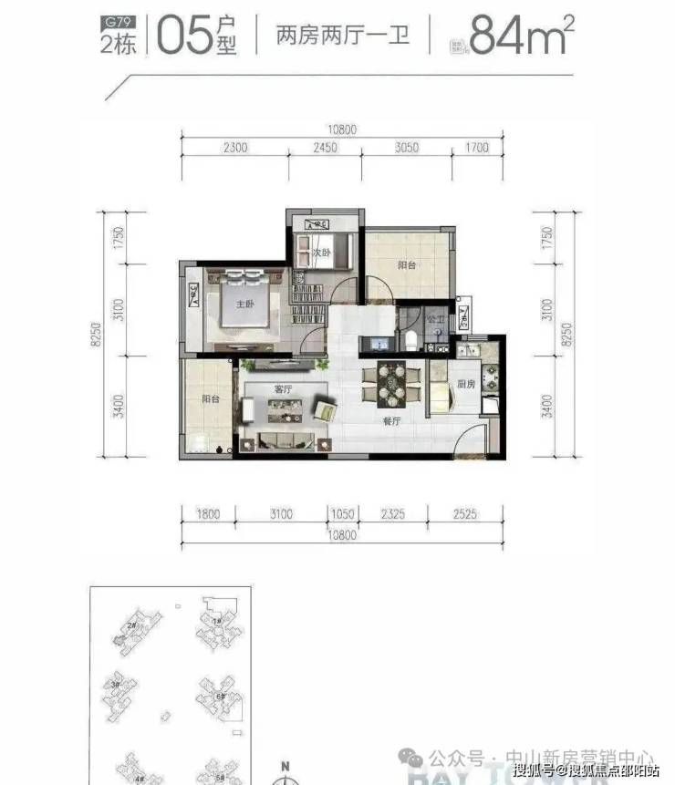
✅中山雅居乐湾际壹号售楼处电话:400-990-7721✅价格、房价、户型图、学校、学位、交通、规划、周边配套、容积率、得房率、使用率、交楼时间、售楼处位置、售楼处地址、售楼处电话、售楼部、营销中心电话、售楼中心电话、销售中心、样板房、样板间、小区环境、楼盘详情、楼盘介绍、项目简介、项目介绍、备案价、折扣、优惠、活动、最新消息、怎么样、能买吗;
免责声明
1、文章图片来源于微信搜索或百度搜索引擎,我方非相关图片的原创作者,也不对相关图片及内容享有任何权利。
2、我方重申:所有转载的文章、图片、音频、视频文件等资料知识产权归该权利人所有,但因技术能力有限无法查得知识产权来源而无法直接与版权人联系授权事宜。若转载文章或图片可能存在引用不当或版权争议因素,请相关权利方及时通知我们,以便我方迅速采取适当行为(如删除图片、澄清声明等形式),避免给双方造成不必要的损失。
3、本宣传资料对项目周边幼儿园、学校等教育资源的介绍旨在提供相关信息,并不意味着我方对就学安排作出承诺。教育资源的名称、办学性质、办学规模、学位设置、开学(班)时间、招生条件、收费标准及招生区域存在调整的可能,应以政府教育主管部门及办学方颁布的政策规定为准。
4、文章中文字和图片之间无必然联系,仅供读者参考。
5、本文所述内容和意见仅供参考,不构成市场交易依据和投资建议。
声明:本文由入驻焦点开放平台的作者撰写,除焦点官方账号外,观点仅代表作者本人,不代表焦点立场。
